Рынок «Воронежский» – комплекс торговых зданий на Бабурке
- Украина
- Запорожье
- Хортицкий
Информация
Продаётся комплекс торговых зданий и сооружений, на улице Василия Сергиенко,31 (бывшая ул. Заднепровская).
Общая площадь помещений – 1520 м².
Комплекс расположен на земельном участке общей площадью 1.499 га.
Кадастровый номер –
2310100000:06:009:0004.
Договор аренды до 2028 года.
Целевое назначение – «для размещения вещевого и продовольственного рынков».
Рынок находится в зоне "Ж-4" (Генплан г. Запорожье) – зона смешанной многоквартирной многоэтажной жилой застройки и общественной застройки.
Рынок введён в эксплуатацию в 2010 году.
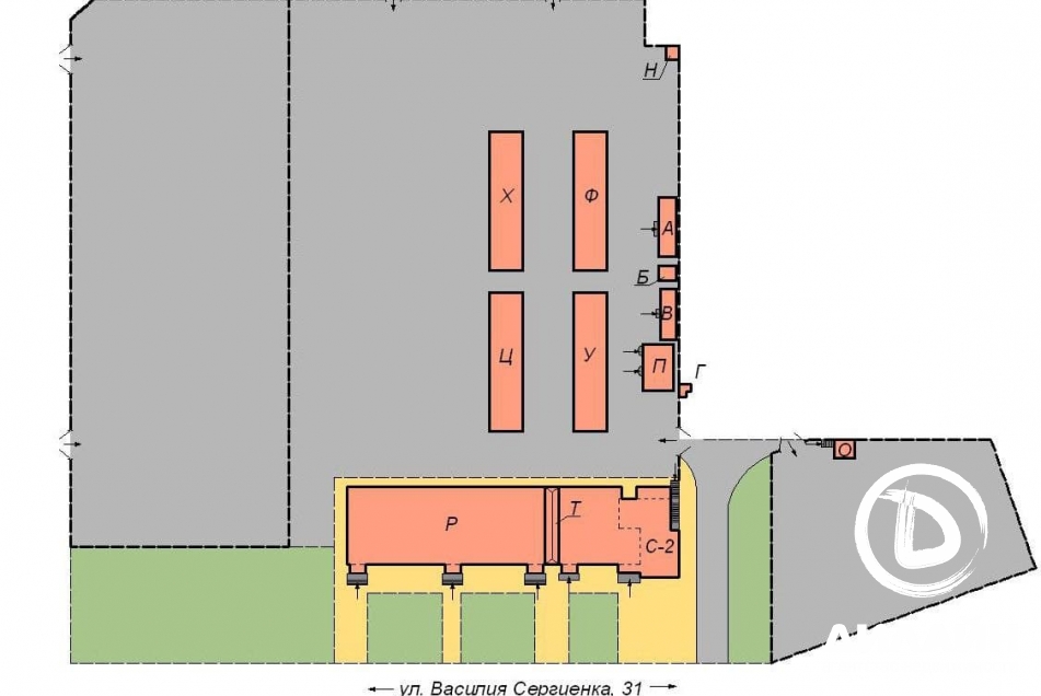
Состав комплекса:
А – административное здание, S=35.2 м².
Р – торговый павильон, 479.6 м².
С-2 – торговый павильон (кафе), S=324.7 м².
Х – торговый павильон, S=146.7 м².
Ф – торговый павильон, S=147.1 м².
Ц – торговый павильон, S=147.1 м².
У – торговый павильон, S=147.6 м².
П– туалет, S=45.2 м².
В – лаборатория, S=28.8 м².
Н – трансформаторная будка, S=3.6 м².
О – КПП, S=14 м².
Б – холодильная камера.
Г – уборная.
Т – навес.
Стоянка для автомобилей.
Договора со всеми коммунальными службами города.
Разрешенная электрическая мощность – 130 кВт.
Интенсивный автомобильный и пешеходный трафик.
В непосредственной близости к рынку находится комплекс АТБ, жилой микрорайон, АЗС, Центр занятости [более подробно на копии Google maps].







