Для бизнеса
Фасадное здание напротив Дубовой рощи
Район:
- Украина
- Запорожье
- Александровский
- Старая часть (Анголенко)
Общая площадь:
101.00 м2
Площадь участка:
2.00 соток
Тип:
Производственно-складская
Цена: 1 100 000 грн
(
25 000 $
)
Имя:
Сергей
Тел.:
050-953-59-43
Информация
ОБЪЕКТ ПРОДАН
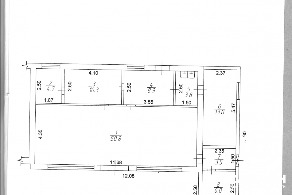
Продается отдельно стоящее здание по ул. Глисерная,14, на входе в Судоремонтный завод.
Общая площадь помещений – 101 м.кв.
Здание расположено на земельном участке 0.0126 га.
Имеются проекты на электроснабжение (20 кВт), водоснабжение и канализацию.
Отличная автомобильная и пешеходная доступность! Интенсивный трафик.
Объект будет эффективным для размещения СТО, мойки, магазина, мастерских, офиса.







